Срок работы пробной версии продукта истек. Через две недели этот сайт полностью прекратит свою работу. Вы можете купить полнофункциональную версию продукта на сайте www.1c-bitrix.ru. Проект Гостевой дом
Мы в Instagram
Интернет магазин Личный кабинет Контакты
Заказать обратный звонок
Мы Вам позвоним

В ближайшее время с Вами свяжется персональный менеджер и ответит на интересующие вопросы.

*

*

* Помечены поля, которые необходимо заполнить

Заголовок

текст


366

Гостевой дом

Выбрать технологию
строительства
Гостевой дом

Заявка на покупку дома по акции

Как с вами связаться?
*
 
*




* Помечены поля, которые необходимо заполнить

О проекте

БАЗОВАЯ КОМПЛЕКТАЦИЯ С ТЁПЛЫМ КОНТУРОМ:
Домокомплект из клееной  изготовленный с применением клеевых систем AkzoNobel: обвязочный брус  в мм, стойки 180х200 в мм, прогоны 140х280 в мм, 180х200 в мм, 180х280 в мм  
Комплект клееных балок перекрытия 80х180 в мм, 140х160 в мм для двух этажей  
Комплект клееных стропил 140х240 в мм  
Заполнение стен, перекрытий, кровли PIR панелями. Толщина PIR панелей в стенах — 80 мм, в перекрытии пола первого этажа — 100 мм, в кровле — 120 мм  
Панорамное остекление фасада двухкамерными энергоэффективными стеклопакетами: наружное стекло — закаленное солнцезащитное, внутреннее — закаленное ударопрочное низкоэмиссионное  
Крепежные и расходные материалы для сборки домокомплекта

Гостевой дом

Заказать проект

Как с вами связаться?
*
*
* Помечены поля, которые необходимо заполнить

Рассчитать мой проект

*

*

*

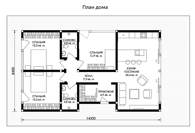
Фасады и планировки проекта

Заголовок

текст


Наши сервисы

  • KNAUF Therm
  • GLUNZ
  • GreenBoard
  • REHAU
  • KI
  • LP
  • КАЛЕВАЛА
мы применяем только лучшие материалы