Срок работы пробной версии продукта истек. Через две недели этот сайт полностью прекратит свою работу. Вы можете купить полнофункциональную версию продукта на сайте www.1c-bitrix.ru. Проект TH-20
Мы в Instagram
Интернет магазин Личный кабинет Контакты
Заказать обратный звонок
Мы Вам позвоним

В ближайшее время с Вами свяжется персональный менеджер и ответит на интересующие вопросы.

*

*

* Помечены поля, которые необходимо заполнить

Заголовок

текст


366

TH-20

Выбрать технологию
строительства
TH-20 TH-20 TH-20 TH-20 TH-20 TH-20 TH-20

Заявка на покупку дома по акции

Как с вами связаться?
*
 
*




* Помечены поля, которые необходимо заполнить
  • TH-20
  • TH-20
  • TH-20
  • TH-20
  • TH-20
  • TH-20
  • TH-20

О проекте

TH-20

Заказать проект

Как с вами связаться?
*
*
* Помечены поля, которые необходимо заполнить

Рассчитать мой проект

*

*

*

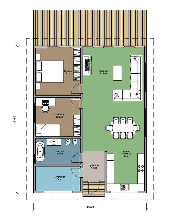
Фасады и планировки проекта

Заголовок

текст


Наши сервисы

  • KNAUF Therm
  • GLUNZ
  • GreenBoard
  • REHAU
  • KI
  • LP
  • КАЛЕВАЛА
мы применяем только лучшие материалы